Bande de dilatation pour la prise de terre en fondation

Pour la traversée de l’électrode de terre en fondation dans les fondations étendues (plusieurs sections) à travers les joints de dilatation, sans devoir sortir la prise de terre de la dalle de fondation.

La bande de dilatation sera intégrée au béton du radier de telle manière que le bloc de polystyrène se trouve dans une section et que l’autre extrémité soit guidée librement vers la section suivante.

1 Product

Part No. 308150 DB 700X30X4 V2A

GTIN 4013364106970, Customs tariff No. (EU): 85359000, Gross weight: 682.00 g, PU: 1.00 pièce(s)


Images

Additional information

Bande de dilatation pour la prise de terre en fondation INOX
Bande de dilatation pour la prise
de terre en fondation pour la traversée de l’électrode de terre en fondation dans les fondations étendues
(plusieurs sections) à travers les joints de dilatation et de
séparation, sans devoir sortir
la prise de terre de la dalle de fondation.

Matériau - bande: INOX
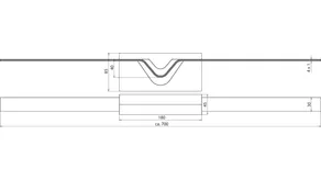
Dimensions - bande: env. 700 x 30 x (4 x 1) mm
Dilatation max.: +15 mm / -30 mm
Section: 120 mm2
Matériau - bloc: polystyrène
Courant de court-circuit (AC 50 Hz/DC): 6 kA

produit : DEHN
Type: DB 700X30X4 V2A
Référence: 308150
ou équivalent

Certificates

 

Technical data

Matériau - bande INOX
Dimensions - bande (l x l x p) env. 700 x 30 x (4 x 1) mm
Section 120 mm2
Matériau - bloc polystyrène
Dimensions - bloc (l x l x p) 180 x 85 x 45 mm
Courant de court-circuit (AC 50 Hz/DC) (1 s; ≤ 300 °C) 6 kA

Product 308150 was added to Notepad.

Product 308150 was added to the cart.


back to top