Mât de capture pour conducteur HVI light plus sur toits plats

Set complet comprenant pointe de capture, tube support, set de fixation (y compris plaque de raccordement, supports plastique, fixation pour câble et prise PA) et trépieds.
Avec adaptation à la pente du toit jusqu’à 10° max.
Les plots béton (17 kg) et les plaques de protection sont à commander séparément.

Mât de capture avec petit trépied et pointe de capture

2 Products

Part No. 819685 FM D40 L2200 GFK AL V2A DBS R320 STTZN

GTIN 4013364494459, Customs tariff No. (EU): 85389099, Gross weight: 6.34 kg, PU: 1.00 pièce(s)


Images

Additional information

Mâts de capture pour conducteur HVI light plus
complet avec plaque de raccordement (4 niveaux) pour
conducteur HVI light plus et set de fixation pour le montage
sur un mât de capture.
Pour respecter la distance de séparation par rapport aux pièces conductrices
selon NF EN 62305-3
Tube isolant en fibre de verre (PRV)
Tube Ø40 mm
Facteur de matériel km = 0,7
couleur gris clair, résistante aux UV
Mâts de capture dimensionnés selon
Eurocode 1 (DIN EN 1991-1-4 + DIN EN 1991-1-4/NA)
Adaptation à l’inclinaison du toit de jusqu’à 10° max.
Mât de capture pour conducteur HVI light plus
Hauteur totale 2200 mm
Les plots béton empilables (référence 102 010) et les
Plaques de protection (référence 102 050) doivent être commandés séparément
Matériau statique: St/tZn
Rayon, trépied: 320 mm
Matériau, tube support: PRV / Alu
Longueur, tube support: 1600 mm
Longueur, isolation: 1230 mm
Longueur, pointe captrice: 500 mm
Matériau, pointe captrice: INOX
Norme: IEC/TS 62561-8

produit : DEHN
Type: FM D40 L2200 GFK AL V2A DBS R320 STTZN
Référence: 819685
ou équivalent

Certificates

 

Technical data

Hauteur 2200 mm
Matériau statique St/tZn
Rayon, trépied 320 mm
Matériau, tube support PRV / Alu
Longueur, tube support 1600 mm
Longueur, pointe captrice 500 mm
Matériau, pointe captrice INOX
Norme IEC/TS 62561-8

Product 819685 was added to Notepad.

Product 819685 was added to the cart.

Part No. 819690 FM D40 L2700 GFK AL V2A DBS R320 STTZN

GTIN 4013364494466, Customs tariff No. (EU): 85389099, Gross weight: 6.61 kg, PU: 1.00 pièce(s)


Images

Additional information

Mâts de capture pour conducteur HVI light plus
complet avec plaque de raccordement (4 niveaux) pour
conducteur HVI light plus et set de fixation pour le montage
sur un mât de capture.
Pour respecter la distance de séparation par rapport aux pièces conductrices
selon NF EN 62305-3
Tube isolant en fibre de verre (PRV)
Tube Ø40 mm
Facteur de matériel km = 0,7
couleur gris clair, résistante aux UV
Mâts de capture dimensionnés selon
Eurocode 1 (DIN EN 1991-1-4 + DIN EN 1991-1-4/NA)
Adaptation à l’inclinaison du toit de jusqu’à 10° max.
Mât de capture pour conducteur HVI light plus
Hauteur totale 2700 mm
Les plots béton empilables (référence 102 010) et les
Plaques de protection (référence 102 050) doivent être commandés séparément
Matériau statique: St/tZn
Rayon, trépied: 320 mm
Matériau, tube support: PRV / Alu
Longueur, tube support: 1600 mm
Longueur, isolation: 1230 mm
Longueur, pointe captrice: 1000 mm
Matériau, pointe captrice: INOX
Norme: IEC/TS 62561-8

produit : DEHN
Type: FM D40 L2700 GFK AL V2A DBS R320 STTZN
Référence: 819690
ou équivalent

Certificates

 

Technical data

Hauteur 2700 mm
Matériau statique St/tZn
Rayon, trépied 320 mm
Matériau, tube support PRV / Alu
Longueur, tube support 1600 mm
Longueur, pointe captrice 1000 mm
Matériau, pointe captrice INOX
Norme IEC/TS 62561-8

Product 819690 was added to Notepad.

Product 819690 was added to the cart.


Mât de capture avec grand trépied et pointe de capture

1 Product

Part No. 819682 FM D40 L2700 GFK AL V2A DBS R560 STTZN

GTIN 4013364494428, Customs tariff No. (EU): 85389099, Gross weight: 12.86 kg, PU: 1.00 pièce(s)


Images

Additional information

Mâts de capture pour conducteur HVI light plus sur toits plats
complet avec plaque de raccordement (4 niveaux) pour
conducteur HVI light et set de fixation pour le montage
sur un mât de capture.
Pour respecter la distance de séparation par rapport aux pièces conductrices
selon DIN EN 62305-3 (VDE 0185-305-3)
Tige isolante en matière plastique à renfort de verre (PRV)
Tube Ø40 mm
Facteur de matériel km = 0,7
couleur gris clair, résistante aux UV
Les mâts de capture sont dimensionnés selon
Eurocode 1 (DIN EN 1991-1-4 + DIN EN 1991-1-4/NA) pour une vitesse de vent en rafales max. de 200 km/h.

Adaptation à l’inclinaison du toit de jusqu’à 10° max.
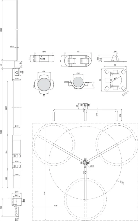
Mât de capture pour conducteur HVI light plus
Hauteur totale 2700 mm
Les plots béton empilables (référence 102 010) et les
Plaques de protection (référence 102 050) doivent être commandés séparément.
Matériau statique: St/tZn
Rayon, trépied: 560 mm
Matériau, tube support: PRV / Alu
Longueur, tube support: 1600 mm
Longueur, isolation: 1230 mm
Longueur, pointe captrice: 1000 mm
Matériau, pointe captrice: INOX
Norme: IEC/TS 62561-8

produit : DEHN
Type: FM D40 L2700 GFK AL V2A DBS R560 STTZN
Référence: 819682
ou équivalent

Certificates

 

Technical data

Hauteur 2700 mm
Matériau statique St/tZn
Rayon, trépied 560 mm
Matériau, tube support PRV / Alu
Longueur, tube support 1600 mm
Longueur, pointe captrice 1000 mm
Matériau, pointe captrice INOX
Norme IEC/TS 62561-8

Product 819682 was added to Notepad.

Product 819682 was added to the cart.


Mât de capture avec grand trépied et pointe de capture

2 Products

Part No. 819687 FM D40 L3700 GFK AL DBS R560 STTZN

GTIN 4013364494435, Customs tariff No. (EU): 85389099, Gross weight: 13.02 kg, PU: 1.00 pièce(s)


Images

Additional information

Mâts de capture pour conducteur HVI light plus sur toits plats
complet avec plaque de raccordement (4 niveaux) pour
conducteur HVI light plus et set de fixation pour le montage
sur un mât de capture.
Pour respecter la distance de séparation par rapport aux pièces conductrices
selon DIN EN 62305-3 (VDE 0185-305-3)
Tige isolante en matière plastique à renfort de verre (PRV)
Tube Ø40 mm
Facteur de matériel km = 0,7
couleur gris clair, résistante aux UV
Les mâts de capture sont dimensionnés selon
Eurocode 1 (DIN EN 1991-1-4 + DIN EN 1991-1-4/NA) pour une vitesse de vent en rafales max. de 159 km/h.

Adaptation à l’inclinaison du toit de jusqu’à 10° max.
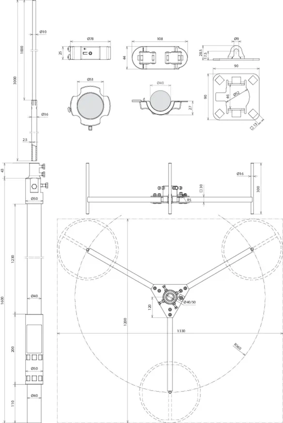
Mât de capture 40 pour conducteur HVI light plus
Hauteur totale 3700 mm
Les plots béton empilables (référence 102 010) et les
Plaques de protection (référence 102 050) doivent être commandés séparément
Matériau statique: St/tZn
Rayon, trépied: 560 mm
Matériau, tube support: PRV / Alu
Longueur, tube support: 1600 mm
Longueur, isolation: 1230 mm
Longueur, pointe de capture: 2000 mm
Matériau, pointe de capture: AlMgSi
Norme: IEC/TS 62561-8

produit : DEHN
Type: FM D40 L3700 GFK AL DBS R560 STTZN
Référence: 819687
ou équivalent

Certificates

 

Technical data

Hauteur 3700 mm
Matériau statique St/tZn
Rayon, trépied 560 mm
Matériau, tube support PRV / Alu
Longueur, tube support 1600 mm
Longueur, pointe de capture 2000 mm
Matériau, pointe de capture AlMgSi
Norme IEC/TS 62561-8

Product 819687 was added to Notepad.

Product 819687 was added to the cart.

Part No. 819680 FM D40 L4700 GFK AL DBS R560 STTZN

GTIN 4013364494442, Customs tariff No. (EU): 85389099, Gross weight: 13.06 kg, PU: 1.00 pièce(s)


Images

Additional information

Mâts de capture pour conducteur HVI light plus sur toits plats
complet avec plaque de raccordement (4 niveaux) pour
conducteur HVI light plus et set de fixation pour le montage
sur un mât de capture.
Pour respecter la distance de séparation par rapport aux pièces conductrices
selon DIN EN 62305-3 (VDE 0185-305-3)
Tige isolante en matière plastique à renfort de verre (PRV)
Tube Ø40 mm
Facteur de matériel km = 0,7
couleur gris clair, résistante aux UV
Les mâts de capture sont dimensionnés selon
Eurocode 1 (DIN EN 1991-1-4 + DIN EN 1991-1-4/NA) pour une vitesse de vent en rafales max. de 99 km/h.

Adaptation à l’inclinaison du toit de jusqu’à 10° max.
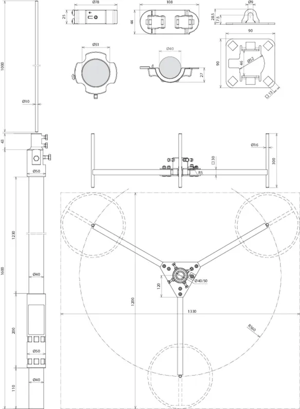
Mât de capture 40 pour conducteur HVI light plus
Hauteur totale 4700 mm
Les plots béton empilables (référence 102 010) et les
Plaques de protection (référence 102 050) doivent être commandés séparément.
Matériau statique: St/tZn
Rayon, trépied: 560 mm
Matériau, tube support: PRV / Alu
Longueur, tube support: 1600 mm
Longueur, isolation: 1230 mm
Longueur, pointe de capture: 3000 mm
Matériau, pointe de capture: AlMgSi
Norme: IEC/TS 62561-8

produit : DEHN
Type: FM D40 L4700 GFK AL DBS R560 STTZN
Référence: 819680
ou équivalent

Certificates

 

Technical data

Hauteur 4700 mm
Matériau statique St/tZn
Rayon, trépied 560 mm
Matériau, tube support PRV / Alu
Longueur, tube support 1600 mm
Longueur, pointe de capture 3000 mm
Matériau, pointe de capture AlMgSi
Norme IEC/TS 62561-8

Product 819680 was added to Notepad.

Product 819680 was added to the cart.


back to top